E-mail:
info@abitalab.it
|
Tel:
+39 0432 1714616
Toggle navigation
Home
Lo Studio
Servizi
Progetti
Perché noi
Contatti
Dove Siamo
FAQ
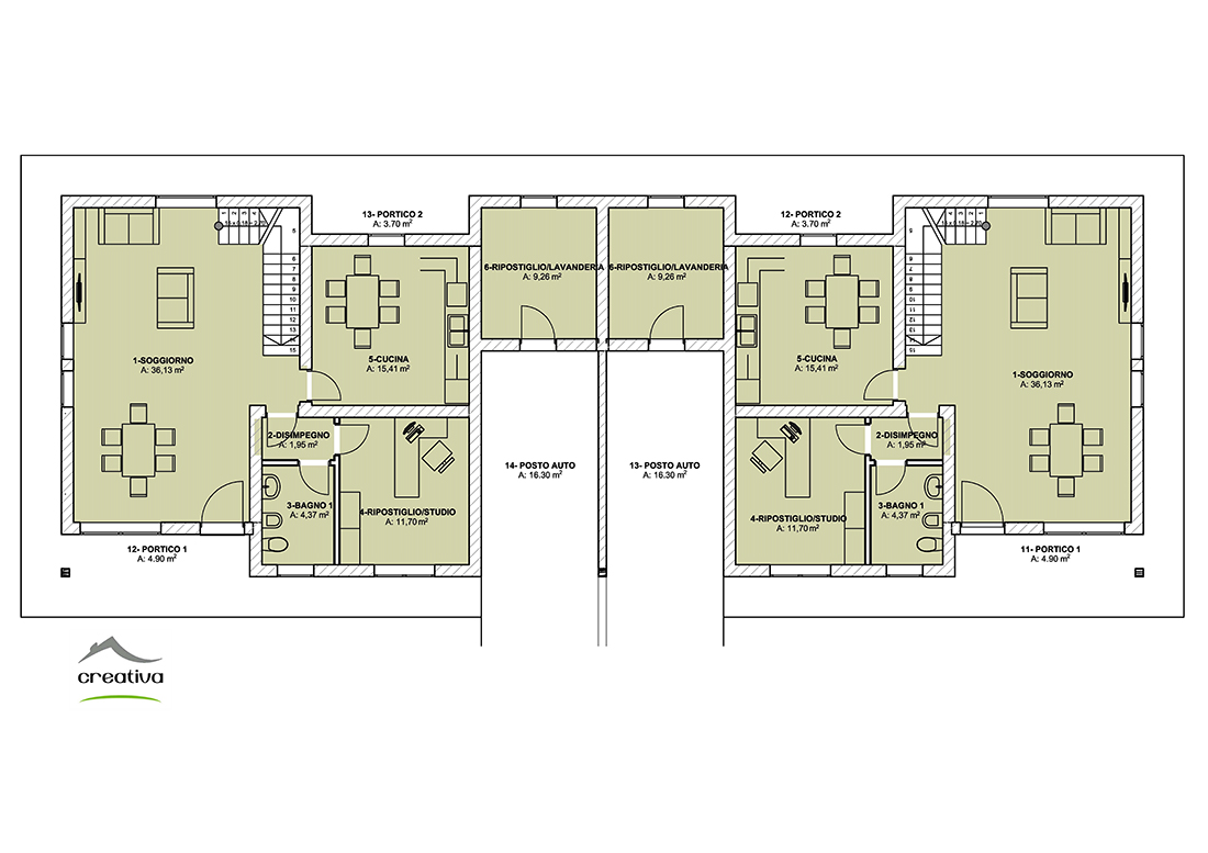
Studio Di Progetto Residence - Varmo (UD)
Previous
Next
Questo sito utilizza cookie di profilazione anche di terze parti per inviare materiale informativo in linea con le tue preferenze. Chiudendo questo banner, scorrendo questa pagina o cliccando qualunque suo elemento acconsenti all’uso dei cookie.
Dettagli
OK